Islandský interiér

Islandský interiér

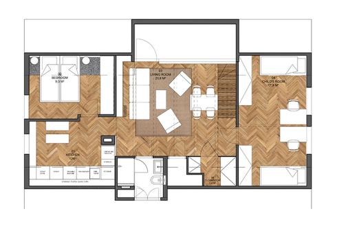
V hlavním islandském městě Reykjavíku jsme se pustily do úplné přestavby bytu 3 + KK.  Z původní dispozice zmizelo takřka vše. Podařilo se nám odhalit střešní trámy a využít malou půdu nad ložnicemi. Majitelé bytu netoužili po ultramoderním bytě, spíše po útulném interiéru ve stylu jejich země. Interiér je inspirován skandinávským designem, ale zároveň je zjednodušen, tak aby byl plně funkční.

Chcete se s námi domluvit? Volejte...

+420 728 072 239 nebo +420 607 129 226